Notre appartement « Qualtinger » est situé dans le 3e arrondissement de Vienne, au Radetzkystraße 5/2, et est facilement accessible par les transports publics.
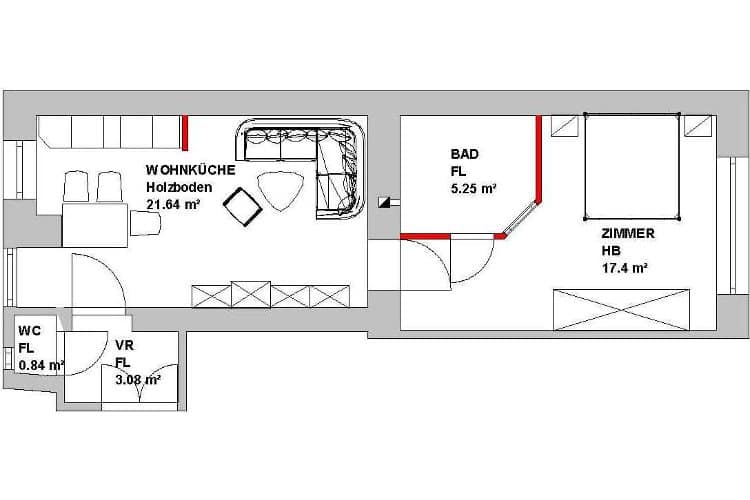
L'appartement moderne et entièrement meublé, d'une superficie de 48 m², comprend une chambre, une cuisine-séjour entièrement équipée, une entrée, une salle de bains (baignoire et lave-linge) et un WC.
L'appartement a été décoré avec des œuvres d'art de Christian Qualtinger.
Les prix sont valables pour un séjour jusqu'à 2 personnes.
