Notre appartement « Wiener Originale » est situé dans le 3e arrondissement de Vienne, au Pfefferhofgasse 5/6, et est facilement accessible par les transports publics.
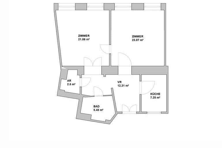
L'appartement moderne et entièrement meublé, d'une superficie de 73 m², comprend une chambre spacieuse, une pièce à vivre, une cuisine entièrement équipée, une entrée, une salle de bains (baignoire et lave-linge) et un WC. La chambre dispose de matelas adaptés aux personnes allergiques.
L'appartement a été décoré avec des œuvres d'art de Christian Qualtinger.
Les prix sont valables pour un séjour jusqu'à 2 personnes.
