Il nostro appartamento “Ghetto” si trova a Vienna, nel 3° distretto, in via Pfefferhofgasse 5/14, ed è facilmente raggiungibile con i mezzi pubblici.
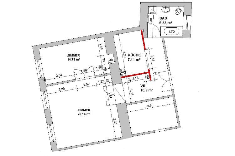
Questo appartamento moderno, completamente ammobiliato e grande 64 m², dispone di una camera da letto, un salotto, una cucina completamente attrezzata, un disimpegno e un bagno (con vasca e lavatrice).
Inoltre, l’appartamento è stato impreziosito con le opere di Ghetto (Lucia Coghetto).
I prezzi indicati si intendono per 2 persone.
