Il nostro appartamento “Ose Oru” si trova a Vienna, nel 12° distretto, in via Tanbruckgasse 33/25-27, ed è facilmente raggiungibile con i mezzi pubblici.
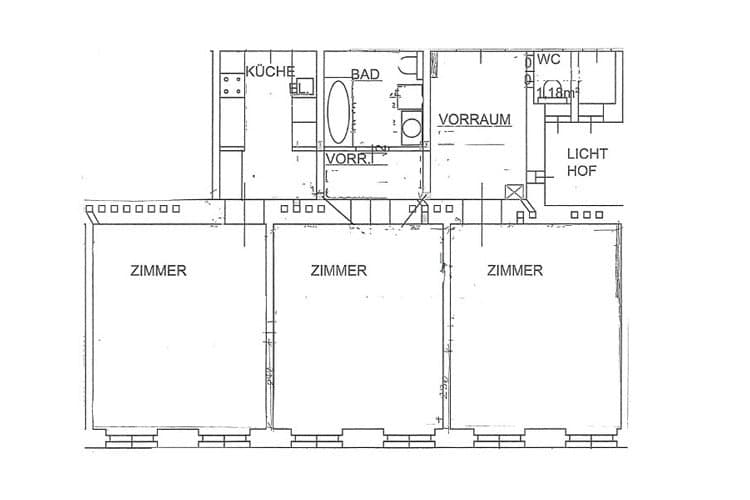
Questo appartamento moderno, completamente ammobiliato e grande 89 m², dispone di una camera da letto, due camere da letto abitabili spaziose, una cucina completamente attrezzata, un disimpegno, un bagno (con vasca, WC, armadietti con serratura e lavatrice) e un WC. Tutte le camere sono accessibili dal disimpegno in posizione centrale. Ecco perché, l’appartamento risulta perfetto anche per coabitazione o appartamento destinato a collaboratori.
Inoltre, l’appartamento è stato impreziosito con le opere di Hubert Fischlhammer.
I prezzi indicati si intendono per 2 persone.
