Il nostro appartamento “Vranjes” si trova a Vienna, nel 5° distretto, in via Hollgasse 8/27, ed è facilmente raggiungibile con i mezzi pubblici.
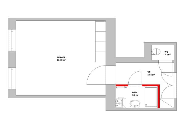
Questo appartamento moderno, completamente ammobiliato e grande 33 m², dispone di una cucina abitabile completamente attrezzata, un disimpegno, un bagno (con doccia e lavatrice) e un WC.
Inoltre, l’appartamento è stato impreziosito con le opere di Helga Vranjes.
I prezzi indicati si intendono per 2 persone.
