Il nostro appartamento “WeHa” si trova a Vienna, nel 3° distretto, in via Radetzkystraße 5/14, ed è facilmente raggiungibile con i mezzi pubblici.
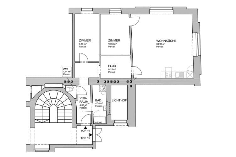
Questo appartamento moderno, completamente ammobiliato e grande 74 m², dispone di 2 camere da letto, un salotto, una cucina completamente attrezzata, un disimpegno, un bagno (con doccia e lavatrice) e un WC. È presente anche l’impianto di climatizzazione.
Inoltre, l’appartamento è stato impreziosito con le opere di Walter Hachleitner (WeHa).
I prezzi indicati si intendono per 2 persone.
